Overview
Living up to its stature and prestige, Pavilion Embassy will be anchoring the wealth of Jalan Ampang with its international connection. Pavilion Embassy caters to the international elites as well as those who yearns to live in a classy diverse neighbourhood. Potential is immense given its strategic location with great amenities and facilities nearby.
This is an exclusive development that will attract expats and well-to-do folks all around. The location itself could justify the price tag as it is conveniently and strategically located along Jalan Ampang. This is the ultimate lure to both developers and potential owners. Luckily for Pavilion Embassy, most of the buildings that are located nearby are low rise apartments and bungalows. Just a heads up in regards to the situation here. The route here is heavily congested as there is an ongoing construction of the elevated road extension that aims to mitigate traffic here. In additional to that, the roads are a bit bent and crooked as well. Hopefully, when all constructions end, Pavilion Embassy won’t get too distracted with any bottleneck jams.
- Status Completed
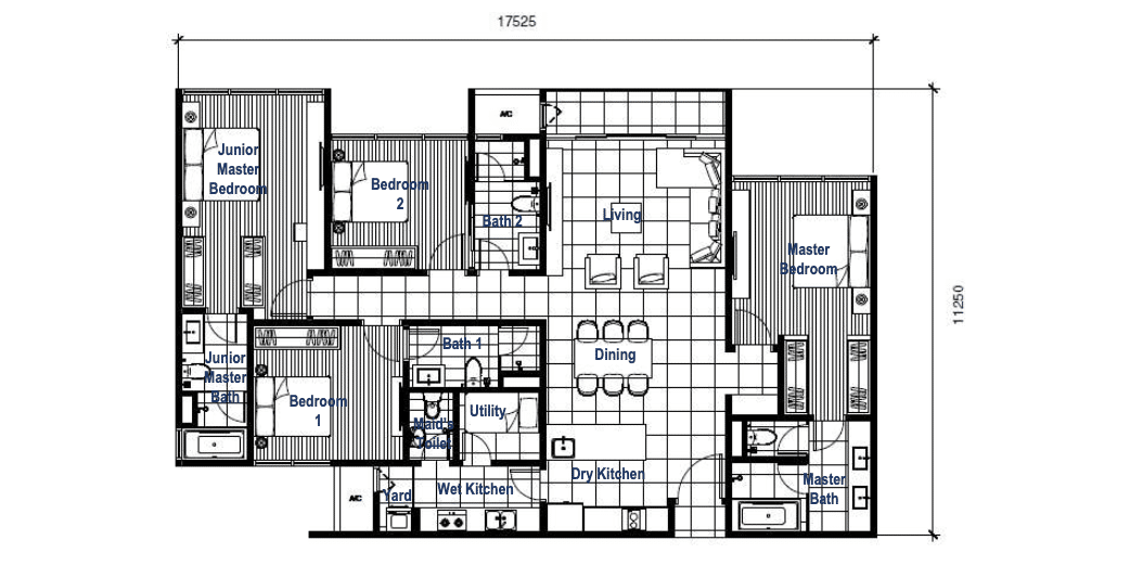
- Area 1899 sqft - 2701 sqft
- Location Jalan Ampang, KL
- Type Serviced Suites
- TenureFreehold
- Completion Year2021
- Total Units126
- Price Range RM2mil - RM3mil
Amenities
Concierge Services
Gym
Multipurpose Hall
24 Hours Security
50M Lap Pool
Changing Room
CCTV System
Children Playground
Viewing Deck
Fresco Dining
Herbs Garden
Sunken Lounge
Gallery







Location
Enquiry
Wish to know more about this property? Fill in your details. We shall contact you shortly.
Click Whatsapp button for fastest response.

